青水沫
和室一間(お布団タイプ)半露天風呂付
昭和の女流小説家、林芙美子が滞在し
小説『温泉宿』で「菊の間」として描かれた
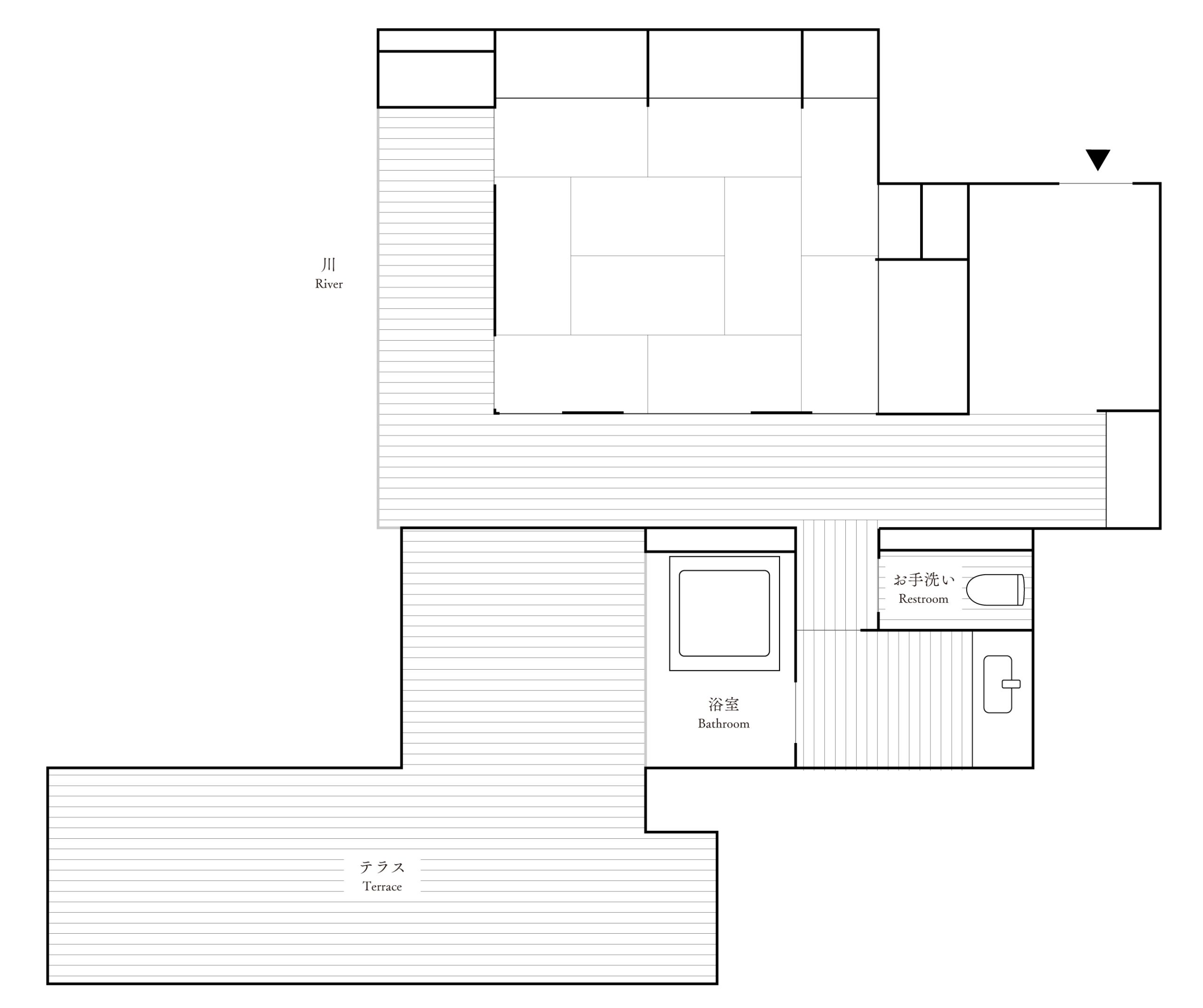
狩野川沿いの風情溢れる半露天風呂付き客室
客室の概要
- 客室設備
ミニバー(ソフトドリンク/アルコール/ミネラルウォーター/スナック)
バス/トイレ別
高速wifi
セーフティボックス
空気加湿清浄機
電気ケトル
- アメニティ
バスアメニティ”Waphyto”
-シャンプー/コンディショナー/ソープ
おちあいろうオリジナルスキンケア”p/d”
-クレンジング/ローション/ミルク浴衣/半纏/足袋/パジャマ
バスタオル/フェイスタオル/ハンドタオル
レプロナイザー ヘアドライヤー
- 貸出備品
携帯電話充電器
ブルーレイ・DVDプレイヤー
デスクライト
延長コード
介護用お風呂椅子
毛布
車椅子
体温計
爪切り
氷枕
ピンセット






